16+ bản vẽ nhà xưởng full đủ loại. Có link download FREE
Nội dung
Bạn đang cần tìm bản vẽ nhà xưởng 20x30, bản vẽ nhà xưởng công nghiệp, nhà xưởng 3 tầng,... HALED STORE sẽ chia sẻ toàn bộ tài liệu trong bài: Download 11 bản vẽ nhà xưởng công nghiệp FULL - Miễn Phí.
1. Bản vẽ thiết kế nhà xưởng 20x30
1.1 Đặc điểm của nhà xưởng 20x30m
- Tốc độ xây dựng nhanh, tiết kiệm thời gian, chi phí
- Linh hoạt cả khả năng thích ứng.
- Tính bền vững cao.
1.2 Hình ảnh cho bản vẽ nhà xưởng full
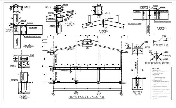
Bản vẽ khung nhà xưởng 20x30m
Thiết kế mái nhà xưởng 20x30m
1.3 Link Download full bản vẽ nhà xưởng công nghiệp
https://drive.google.com/file/d/1bGq5uUKVOu14Uao9B4d-yvmkkgbnU_ab/view?usp=sharing
2. Bản vẽ nhà xưởng 2 tầng công nghiệp
2.1 Đặc điểm nhà xưởng công nghiệp 2 tầng
- Là mô hình nhà xưởng mới, được nhiều KCN đầu tư phát triển.
- Mô hình này giúp tiết kiệm quỹ đất, kết hợp mô hình văn phòng - nhà xưởng - phòng trưng bày tiện dụng.
- Là mô hình hiện đại, được nhiều doanh nghiệp lựa chọn và đưa vào sử dụng.
2.2 Hình ảnh cho bản vẽ nhà xưởng 2 tầng
Hình ảnh bản vẽ nhà xưởng 2 tầng
Thiết kế nhà xưởng 2 tầng
Hệ thống khung sắt nhà xưởng 2 tầng
Thiết kế nhà xưởng 2 tầng
Khung nhà xưởng phổ biến
Thiết kế thông minh, hiện đại
Nhà xưởng bê tông nhiều cửa sổ
2.3 File cad nhà thép tiền chế 2 tầng
Bản thiết kế nhà xưởng 2 tầng
Bản thiết kế nhà xưởng có tầng 2
Thiết kế cột nhà xưởng 2 tầng
Bản vẽ file cad nhà thép tiền chế 2 tầng
Mẫu bản vẽ nhà xưởng 2 tầng số 2
Bản vẽ nhà thép tiền chế 2 tầng mẫu 3
Bản vẽ nhà thép tiền chế 2 tầng mẫu 4
2.4 Download file cad nhà thép tiền chế 2 tầng
https://drive.google.com/file/d/1e7dxsq2D9t7NUdL3OZbbd8wVSQo5n9uA/view?usp=sharing
2.5 Cấu tạo của nhà xưởng 2 tầng sử dụng thép tiền chế
Móng nhà
- Móng nhà thường được làm từ bê tông cốt thép
- Tùy thuộc vào địa chất và mặt bằng của công trình nên có thể lựa chọn móng nền là móng đơn, móng băng hoặc là móng bè
- Phần móng sẽ giúp nâng đỡ phần công trình nhà xưởng
Làm nền móng cho nhà xưởng
Mái nhà
- Mái nhà xưởng thường được lựa chọn làm bằng tôn
- Độ dốc của mái thường từ 10 đến 15 độ để đảm bảo việc thoát nước dễ dàng hơn
- Nên lựa chọn các mái tôn cách nhiệt hoặc thêm một lớp bông thủy tinh để chống nhiệt chống ồn
- Phần đỡ mái thường là hệ thống xà gỗ thép mạ kẽm có dạng chữ C hoặc Z,.. khoảng cách xà gồ từ 1m - 1,5m và liên kết với khung chính tạo sự chắc chắn
- Ở phần đỉnh mái có có thể lắp đặt thêm phần nóc gió để thông gió mang lại không khí trong lành hơn
Thiết kế mái nhà xưởng 2 tầng
Sàn nhà
- Phần sàn nhà sẽ đổ bê tông với độ dày là từ 150cm đến 20cm phía dưới sẽ là lớp base và cát nén dầm
- Tùy thuộc vào trọng trải của máy móc và xe di chuyển thì nhà xưởng 2 tầng đòi hỏi sàn nhà phải có khả năng chịu lực cao
- Trong quá trình thi công cần chú ý xây mặt sàn nhẵn, không sần sùi không gợn để dễ dàng di chuyển và hoạt động
- Mặt sàn bạn có thể sử dụng sơn epoxy hoặc đánh bóng để tạo bề mặt sạch bóng trong quá trình sử dụng
Sàn nhà xưởng epoxy sáng bóng
Hệ thống cửa
- Hệ thống cửa thường được sử dụng là cửa sắt, cửa nhôm hoặc cửa nhựa lõi thép
- Cần chú ý cửa ra vào nhẵn, chống xâm nhập nước một gợi ý tuyệt vời là nên sử dụng cửa tự động đóng, mở, đóng kín
- Phần cửa sổ lựa chọn lắp đặt ở những vị trí có ánh sáng thoáng khí, nơi dễ dàng lau chùi để dễ dàng vệ sinh sạch sẽ
- Hệ thống cửa nhà xưởng cần đảm bảo tính chắc chắn, đóng kín chặt để đảm bảo tài sản
Hệ thống cửa nhà xưởng 2 tầng
Cầu thang
- Để đảm bảo chắc chắn và bền vững và di chuyển thuận tiện thì phần cầu thang nên lựa chọn mẫu thiết kế bằng khung thép tiền chế
Cầu thang cho nhà xưởng 2 tầng
Tường bao
- Phần tường bao thường được làm từ tường gạch hoặc là tường bê tông như là bê tông xỉ, fibrô xi măng, bê tông kenramzit,...
- Tường cần phải vững chắc, kiên cố có khả năng chịu lực tốt
- Lựa chọn tường phù hợp với đặc điểm bên trong nhà xưởng thích ứng với các điều kiện nắng, mưa, gió bão để đảm bảo an toàn
- Ngoài ra bạn có thể lựa chọn màu sơn để sơn tường thêm sạch sẽ, sáng bóng hơn
Tường bao cho nhà xưởng 2 tầng
Cột nhà
- Phần cột nhà có cấu tạo từ thép mang đến độ chắc chắn cao, có khả năng chịu lực
- Cột và kèo sẽ được thiết kế theo dạng thép chữ H hoặc là cấu tạo theo dàn
Phần cột của nhà xưởng
Hệ thống ánh sáng
- Cần xác định được nhu cầu chiếu sáng của từng khu vực là như thế nào
- Nên tận dụng nguồn sáng kết hợp với nguồn đèn LED để chiếu sáng cho không gian tốt nhất
- Hệ thống đèn LED được ưa chuộng chiếu sáng nhà xưởng hiện nay do có nhiều ưu điểm như tiết kiệm năng lượng, tuổi thọ cao và không gây ra tia cực tím, không tỏa nhiệt, chất lượng ánh sáng hoàn hảo,..
Đèn LED chiếu sáng tiết kiệm điện cho nhà xưởng
3. Bản vẽ nhà xưởng 3 tầng
3.1 Đặc điểm
- Là mô hình nhà xưởng mới.
- Là mô hình hiện đại, được nhiều doanh nghiệp lựa chọn và đưa vào sử dụng.
- Mô hình này giúp tiết kiệm quỹ đất, kết hợp mô hình văn phòng - nhà xưởng - phòng trưng bày tiện dụng.
3.2 Hình ảnh Thiết kế demo
Bản vẽ chi tiết nhà xưởng 3 tầng
Bản vẽ mặt bằng bố trí tầng trệt
3.3 Link Download full
>> Xem thêm: Đèn cao áp nhà xưởng - 99+ mẫu đèn highbay sử dụng cho nhà xưởng siêu sáng siêu bền siêu tiết kiệm điện.
4. Bản vẽ điện nhà xưởng công nghiệp
4.1 Đặc điểm nhà xưởng công nghiệp
- Diện tích, quy mô lớn tập trung nhiều thiết bị, nguyên vật liệu phục vụ sản xuất.
- Còn là khu lưu trữ hàng trước khi đưa ra thị trường tiêu thụ.
- Số lượng nhân viên làm việc lớn.
4.2 Hình ảnh bản vẽ nhà xưởng file cad
Bản vẽ chi tiết kết cấu nhà xưởng công nghiệp
Thiết kế mặt đứng nhà xưởng công nghiệp
4.3 Download bản vẽ cad nhà xưởng công nghiệp
https://drive.google.com/file/d/1VLglgazjDyEOvbnsBx8omTRbxP0J9F9Y/view?usp=sharing
5. Bản vẽ nhà xưởng có cầu trục
5.1 Đặc điểm nhà xưởng cầu trục
- Tiết kiệm chi phí nhân công bởi thiết bị cầu trục thay thế công việc của công nhân hiệu quả hơn.
- Nâng cao năng suất lao động.
- Giúp đảm bảo tiến độ công việc khi nào cần thiết.
- Lắp đặt nhanh chóng, an toàn sử dụng.
- Quá trình vận hành bằng máy móc, chỉ cần điều khiển từ xa.
- Chi phí đầu tư thấp.
5.2 Bản vẽ nhà xưởng file cad

Bản vẽ chi tiết nhà xưởng có cầu trục
Bản thiết kế khung k3 số lượng 1
5.3 Download bản vẽ cad nhà xưởng công nghiệp
https://drive.google.com/file/d/1ysgQP4JWYYJDp47H7RfB2IIj3_SbuI8-/view?usp=sharing
6. Bản vẽ nhà xưởng khung thép
6.1 Đặc điểm nhà xưởng khung thép
- Là loại nhà có kết cấu từ các cấu kiện được tạo sẵn theo thiết kế và kiểm tra chất lượng kỹ trước khi đưa ra công trường lắp đặt.
- Tiết kiệm chi phí khi xây dựng.
- Thời gian thi công nhanh.
- Linh hoạt tiện lợi.
- Kết cấu gọn nhẹ, không chiếm nhiều không gian
- Chống nước và ẩm mốc cao.
6.2 Bản vẽ nhà xưởng file cad
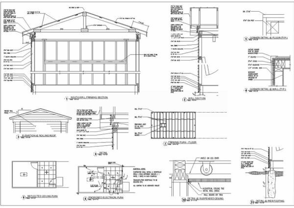
Bản vẽ nhà xưởng kết cấu khung thép
Thiết kế chi tiết xà gồ nhà xưởng khung thép
Bản thiết kế cấu tạo cột nhà xưởng
6.3 Download bản vẽ cad nhà xưởng công nghiệp
7. Bản vẽ nhà xưởng mái tôn
7.1 Đặc điểm nhà xưởng mái tôn
- Là nhà có kết cấu thép mái tôn, khung tổ hợp các thanh thép bằng vít, bu lông hoặc hàn tạo thành khung thép có khả năng chịu lực cao.
- Khả năng giảm thiểu chi phí lắp đặt.
- An toàn bền vững và tính thích ứng cao.
- Rút ngắn thời gian thi công, tăng tính thẩm mỹ.
7.2 Hình ảnh Thiết kế demo
Bản vẽ chi tiết nhà xưởng mái tôn
Thiết kế khung nhà xưởng mái tôn
7.3 Download bản vẽ cad nhà xưởng công nghiệp
Đang cập nhật...
8. Bản vẽ nhà xưởng phòng cháy chữa cháy
8.1 Đặc điểm
- An toàn xây dựng.
- Tiết kiệm chi phí
- An toàn sử dụng, chống cháy nổ khi xảy ra.
8.2 Hình ảnh Thiết kế demo
Bản vẽ thiết kế nhà xưởng phòng cháy chữa cháy
Bản vẽ chi tiết phòng cháy chữa cháy cho nhà xưởng
8.3 Link Download full
>> Xem thêm: Nơi bán đèn LED nhà xưởng uy tín
9. Bản vẽ nhà xưởng khung thép tiền chế
9.1 Đặc điểm nhà xưởng khung thép tiền chế
- Là loại nhà xưởng làm bằng các cấu kiện thép, được thi công theo bản vẽ có sẵn.
- Toàn bộ khung thép được sản xuất đồng bộ rồi đưa ra công trường lắp ráp xây dựng.
- Mô hình này đang được rất nhiều nhà đầu tư lựa chọn bởi tiết kiệm chi phí
9.2 Hình ảnh Thiết kế demo
Bản thiết kế nhà thép tiền chế
Bản vẽ thiết kế thép tiền chế
9.3 Link Download full bản vẽ thiết kế nhà xưởng
https://drive.google.com/file/d/1s8F8Xy0DpIutwuynOjbGzCcO7YX9VizB/view?usp=sharing
11. Bản vẽ nhà xưởng nhỏ 10x20
Nhà xưởng 10x20 là quy mô nhà xưởng nhỏ nhất hiện nay. Chủ yếu áp dụng cho kinh doanh hộ gia đình.
11.1 Đặc điểm nhà xưởng nhỏ
- Mẫu nhà xưởng loại nhỏ. Sử dụng chất liệu thép tiền chế để xây dựng.
- Giá thành xây dựng thấp.
- Thời gian thi công nhanh.
- Có thể sử dụng làm kho chứa hàng, nơi sản xuất hàng hóa, nơi để xe hoặc văn phòng….
11.2 Bản vẽ nhà xưởng nhỏ Demo
Thiết kế nhà xưởng 200m2
11.3 Link Download Full
- Link Tải TẠI ĐÂY
12. Bản vẽ nhà xưởng 100m2
12.1 Đặc điểm
- Diện tích nhà xưởng 100m2 được coi là nhà xưởng có quy mô nhỏ
- Chi phí xây dựng dao động từ 1.700.000 – 2.400.000 đồng/ m2.
12.2 download bản vẽ cad nhà xưởng công nghiệp
Đang cập nhật
13. Bản vẽ nhà xưởng công nghiệp 200m2
13.1 Đặc điểm
- Diện tích khá khiêm tốn nên chỉ phù hợp với doanh nghiệp có quy mô nhỏ, số lượng máy móc, nhân viên ít.
- Cần tận dụng tối đa không gian và nguyên vật liệu xây dựng tiết kiệm chi phí xây dựng.
13.2 Hình ảnh Thiết kế demo
Bản vẽ khung nhà xưởng 200m2
Bản vẽ mặt bằng mái nhà xưởng 200m2
Bản vẽ mặt bằng khung kèo nhà xưởng 200m2
13.3 Link Download full bản vẽ nhà xưởng 200m2
https://drive.google.com/file/d/14BGfTfgJXtiPNh7Ws0l0MsUDvxCyutQR/view?usp=sharing
14. Bản vẽ nhà xưởng full 300m2
14.1 Đặc điểm
- Nhà xưởng có diện tích 300m2 là nhà xưởng có diện tích trung bình
- Chi phí đầu từ xây dựng có thể lên tới 800.000
14.2 Hình ảnh cho bản vẽ nhà xưởng full
14.3 download bản vẽ cad nhà xưởng công nghiệp
https://drive.google.com/file/d/1zwiJ-SAxtVY71nRRPq-WjsVs-xYWcGCG/view?usp=sharing
15. Bản vẽ nhà xưởng công nghiệp 1000m2
15.1 Đặc điểm
- Diện tích 1000m2 tương đối lớn
- Thích hợp cho những ngành công nghiệp nặng, cần diện tích rộng, có sự đầu tư lớn.
15.2 Hình ảnh cho bản vẽ nhà xưởng full
Đang cập nhật....
15.3 download bản vẽ cad nhà xưởng công nghiệp
Đang cập nhật....
>> Xem thêm: Nơi bán đèn LED nhà xưởng
16. Bản vẽ nhà xưởng công nghiệp 2000m2
16.1 Đặc điểm
16.2 Hình ảnh cho bản vẽ nhà xưởng full
Đang cập nhật....
16.3 Download bản vẽ cad nhà xưởng công nghiệp
Đang cập nhật....
https://drive.google.com/drive/folders/1j6AKkMnR-dBC-QbMqFjbr5KbEE4LP1BI?usp=sharing
Như vậy, bài viết Download 11 bản vẽ nhà xưởng công nghiệp FULL - Miễn Phí trên đã tổng hợp tất cả bản vẽ nhà xưởng phổ biến hiện nay cho bạn tham khảo.
>> Xem thêm:
Bản vẽ biện pháp thi công điện chiếu sáng
Bản vẽ móng trụ đèn chiếu sáng
>>>Xem thêm:
- Bóng đèn LED
- Đèn LED nhà xưởng
- Đèn LED nhà xưởng 100w
- Đèn LED nhà xưởng 150w
- Đèn LED nhà xưởng 200w
- Đèn LED nhà xưởng 50w
THÔNG TIN LIÊN HỆ:
Công ty TNHH Công Nghệ và Xúc Tiến Thương Mại HALEDCO
- Trụ sở Hà Nội: Số 3D2, KDT Cầu Diễn, Bắc Từ Liêm, Hà Nội
- CN HCM: Số 546 Lê Trọng Tấn, P. Tây Thạnh, Q. Tân Phú, TP. Hồ Chí Minh
- CN Đà Nẵng: Số 223, Nguyễn Tri Phương, P. Hoà Thuận Nam, Q. Hải Châu, Đà Nẵng
- Hotline mua hàng: 0332599699
- Bảo hành: (024) 3791 8122
- Email: info@haledco.com
- Website: https://congtydenled.com.vn/
Đánh giá của bạn :







1 Bình luận
Pham Quang Thang
Thêm một bản vẽ nhà xưởng 3 tầng đầy đủ khác, nếu bạn nào cần thì tải về tại đây nhé http://danxaydung.com/chi-tiet/ban-ve-nha-xuong-ban-ve-nha-xuong-3-tang-day-du.html
Xem thêm bình luận